APPARTEMENT 3 Chambres,

+/- 153.21 m², terrasse 73.24
1 628 740 €
Hagen

N° réf 2237913
Description du bien
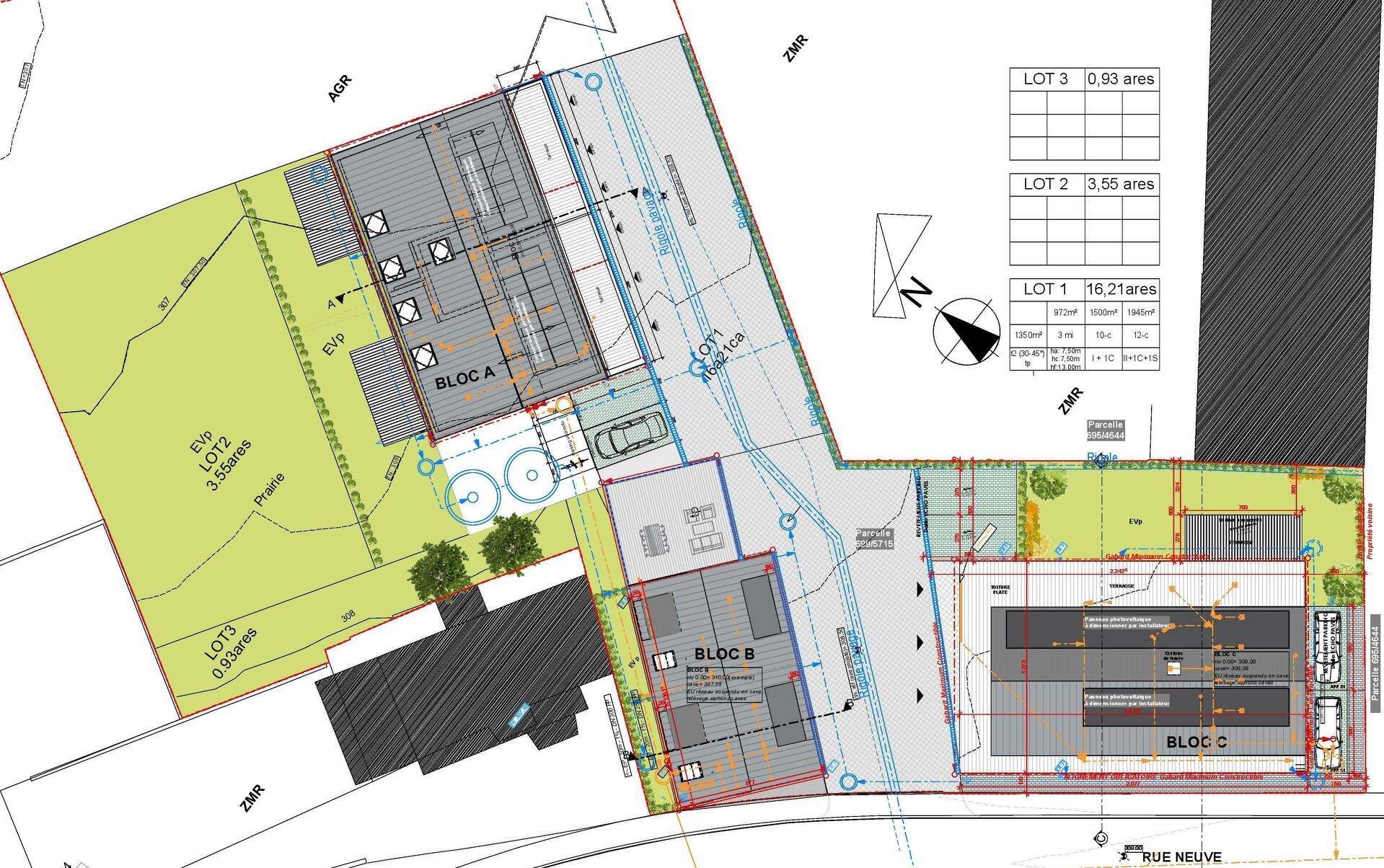
*** Opportunité rare : Vente PENTHOUSE 205 du BLOC C : Résidence avec 5 unités en VEFA ***
RE/MAX Portes-Ouvertes ce mardi 29 juillet 2025 de 15h30 à 18h30 - 76, rue Principale à Hagen. Parking devant la porte.

MAISON TÉMOIN À VENDRE
Visitez cette maison Forum Homes – système breveté HOLZIUS 100% bois massif

- Maison construite par nos soins, disponible immédiatement à la vente et à la visite
- Maison témoin pour notre nouveau projet au 12, rue Neuve
- Projet : 2 résidences de 5 appartements chacune, avec penthouse au dernier étage
- Plusieurs appartements déjà vendus – Démarrage des travaux imminent !

RE/MAX FORUM, spécialiste de l'immobilier au Grand-Duché de Luxembourg, vous propose en vente le projet autorisé avec contrat de construction, une résidence EN FUTURE CONSTRUCTION. Composée de seulement cinq unités, elle est située dans un quartier résidentiel calme à Hagen, à proximité du centre-ville de Luxembourg, offrant une qualité de vie unique.

Au sous-sol, vous disposerez d'une grande cave privative d'environ 13 m².

Au rez-de-chaussée, deux espaces de stationnement intérieurs pour voitures sont disponibles. Un emplacement pour un vélo est également inclus.

Au dernier étage, le PENTHOUSE 205 comprend un hall d'entrée avec vestiaire, un WC séparé, une réserve, trois chambres à coucher, trois salles de douche, ainsi qu'une cuisine ouverte sur le séjour donnant accès à une immense terrasse de 73 m², complétant ainsi cet espace.

Une installation photovoltaïque est incluse dans le projet.

Tous nos prix sont renseignés « terrain + maison », TVA à 3% et 17% comprise sous condition d'acceptation de votre dossier par l'administration de l'enregistrement pour la TVA réduite.

Les photos sont strictement indicatives et non contractuelles

Informations supplémentaires :

La construction en BOIS MASSIF sera réalisée par ForumHomes 'holzius' (www.forumhomes.lu), incarnant une expérience résidentielle unique à Luxembourg.

Notre système de construction constitue une référence en matière d'écologie et de durabilité, unique en son genre. Ces maisons, bâties avec des panneaux de madriers massifs disposés verticalement et assemblés en plusieurs couches, représentent l'évolution moderne des habitations en bois massif. Grâce à un procédé sans colle ni métal, elles offrent une résistance structurelle exceptionnelle, permettant la construction de bâtiments à plusieurs étages sans risque de tassement.

Les honoraires d'agence sont à la charge du ou des vendeur(s).

Si ce projet vous intéresse, je vous invite à me contacter au 691 610 710 ou par e-mail à manou.hamen@remax.lu pour obtenir plus d'informations ou pour planifier un rendez-vous dans notre agence.

EBOOK :

https://www.marketingcenter.remax.eu/Flipbooks/Flipbook_B3275397-7EDA-4ADC-BD87-FAC6B9F6A293/mobile/index.php

RE/MAX FORUM, votre partenaire de confiance pour toutes vos transactions immobilières à travers le Grand-Duché de Luxembourg, met son expertise à votre service. Nous savons à quel point ces démarches sont importantes pour vous, c'est pourquoi nous vous proposons un accompagnement complet et professionnel.
Passeport énergétique
Classe de performance énergétique :
a
Classe d'isolation thermique :
b
Caractéristiques du bien
Intérieur
  • Surface : 153.21 m²
  • Nb de chambres : 3
  • Salle(s) de bain : 3
  • Étage : 2
  • Animaux acceptés
Énergie
  • Chauffage collectif
  • Chauffage au sol
  • Pompe à chaleur
  • Triple vitrage
  • Chauffage central
  • Vmc double flux
  • Solaire thermique
Extérieur
  • Terrasse : 73.24 m²
Parking
  • Garage : 2
Confort
  • Volets électriques
Ce bien vous intéresse ?








* Tous les champs sont obligatoires
Partager : fb in pinterest

Votre contact pour ce bien


HAMEN Manou
691 610 710

Situer le bien